2021陕西汉中青木川古村落数字化测绘项目——瞿氏庄园祠堂正房

类别 年代 指导老师
环艺 2021 孙浩

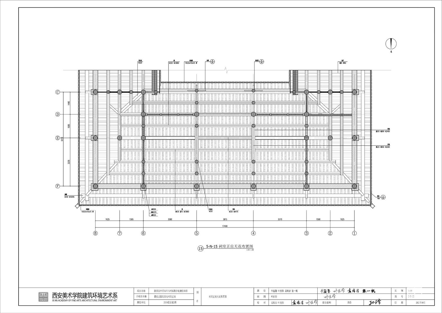
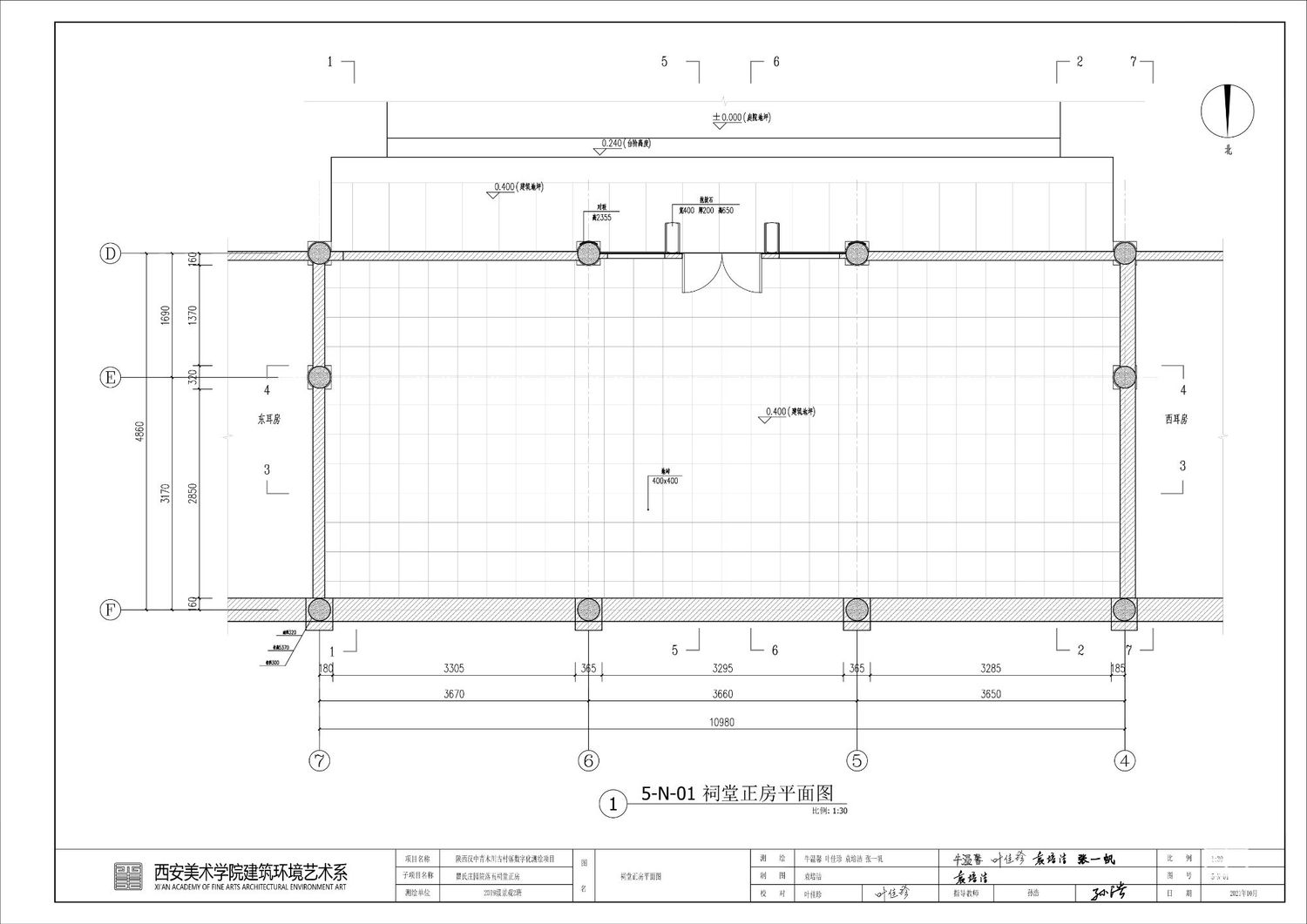
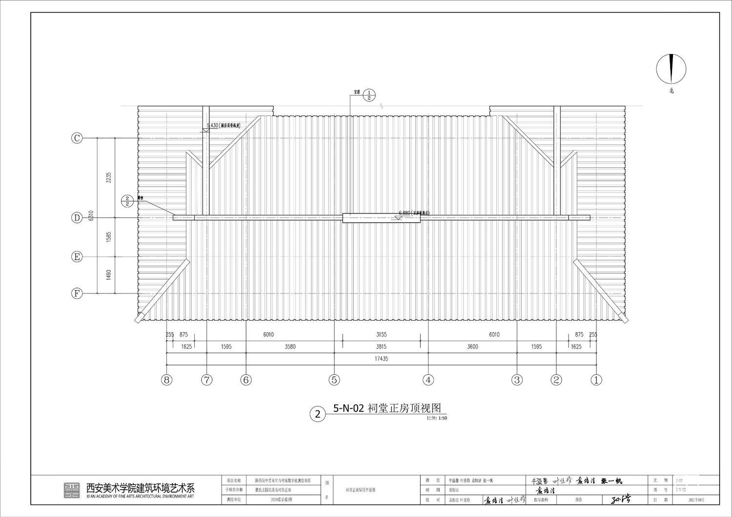
  本组测绘对象为瞿家大院家祠正堂,祠堂,是儒家祭祀祖先或先贤的场所。祠堂有多种用途,主要用于祭祀祖先。同时也作为各房子孙办理婚、丧、寿、喜等事件的场所。族亲们有时为了商议族内的重要事务,也常在祠堂进行。在测绘过程中,通过实地测量与计算机辅助设计软件图纸的绘制,运用传统测量学知识、su软件,outocad计算机软件、实体模型制作等,了解到传统建筑文化与生活的关系,提高了审美修养、理论修养、测绘能力及建筑空间认知,增强知识储备技能提高团队协作能力,同时加强了CAD等计算机软件的绘图能力。本次课程使我们更加详细的了解了古建知识,增强了古建保护意识与文化自信,体验建筑空间感,材料运用,建筑尺度感等将理论联系实际,了解古代建筑建造常用方法与手段,为将来解决实际问题打下良好基础,具有深远的教育意义。

发布评论