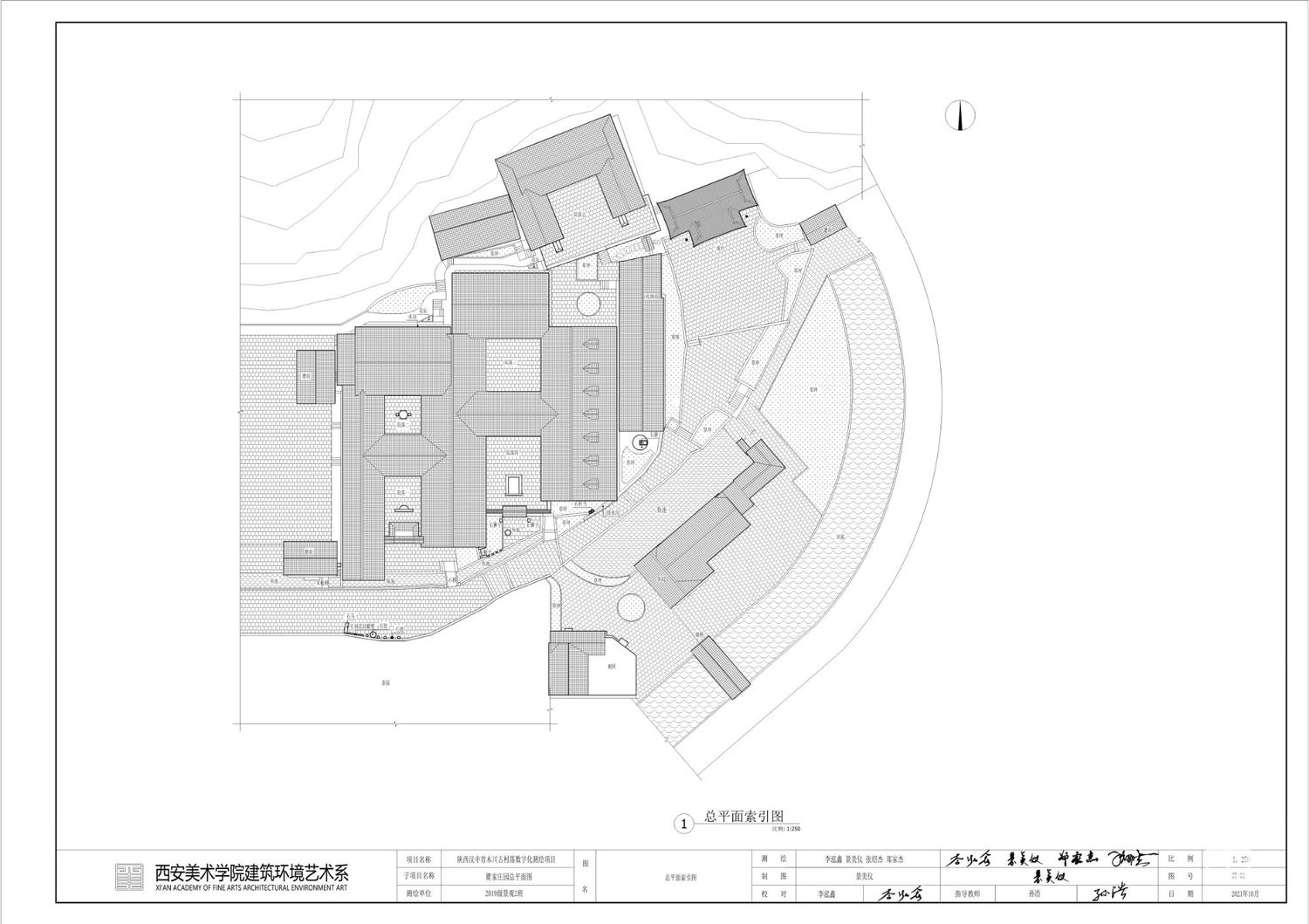
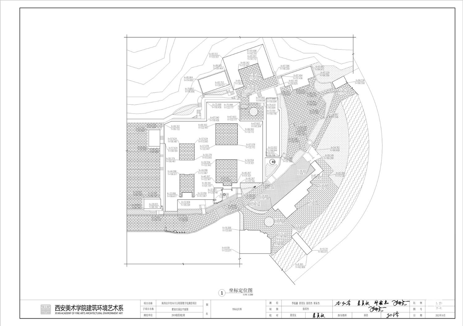
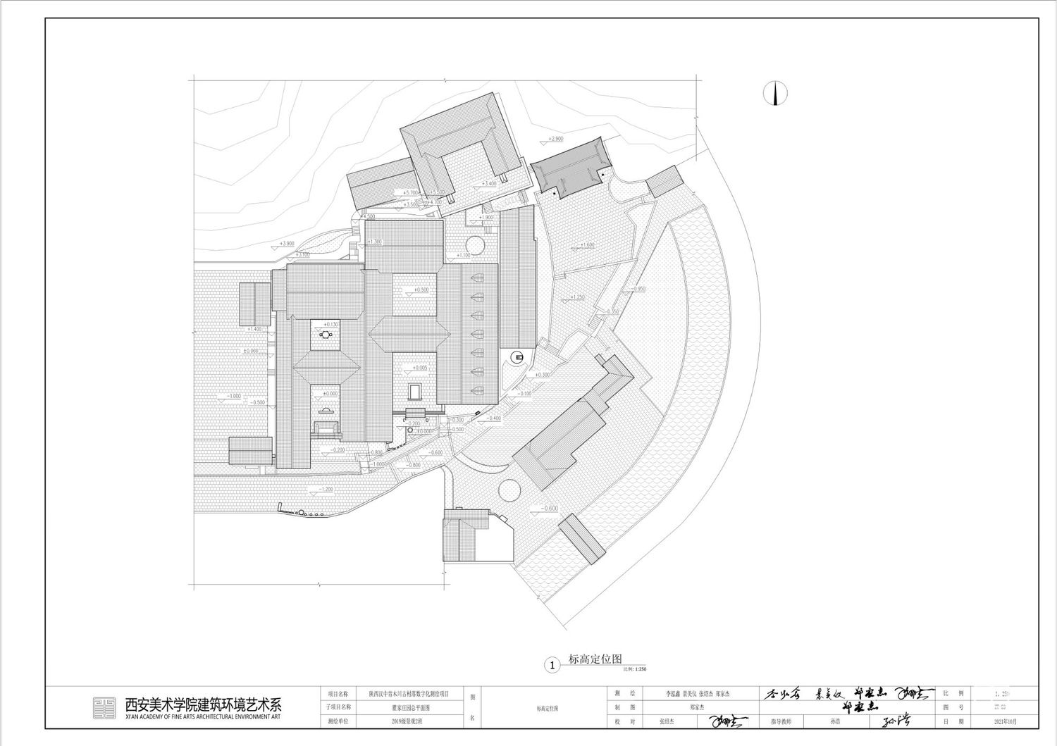
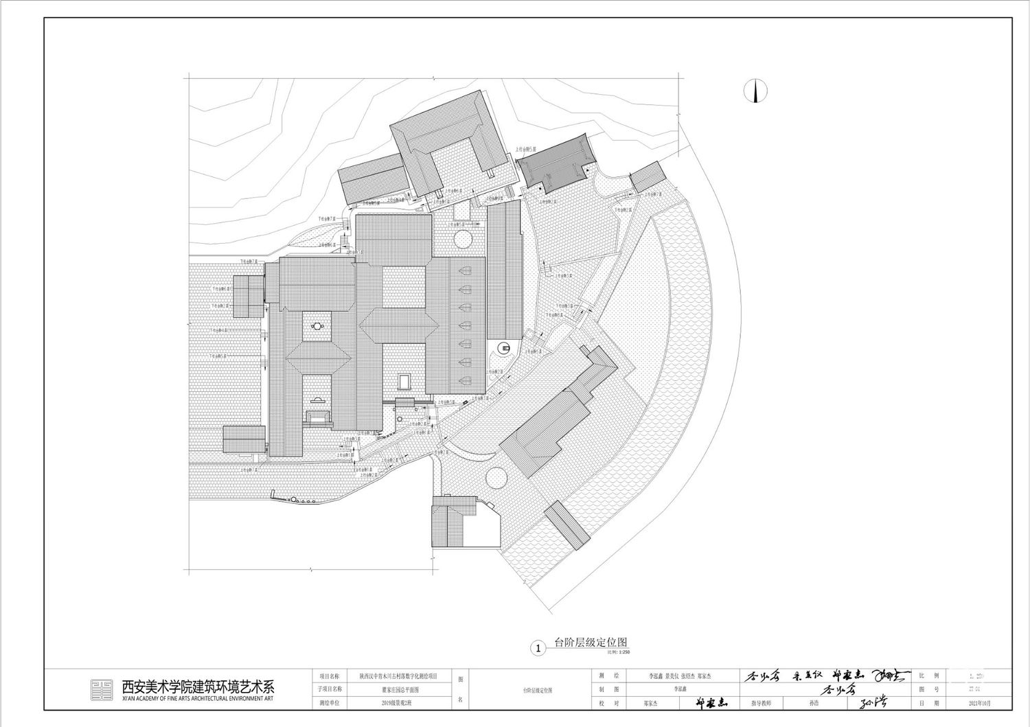
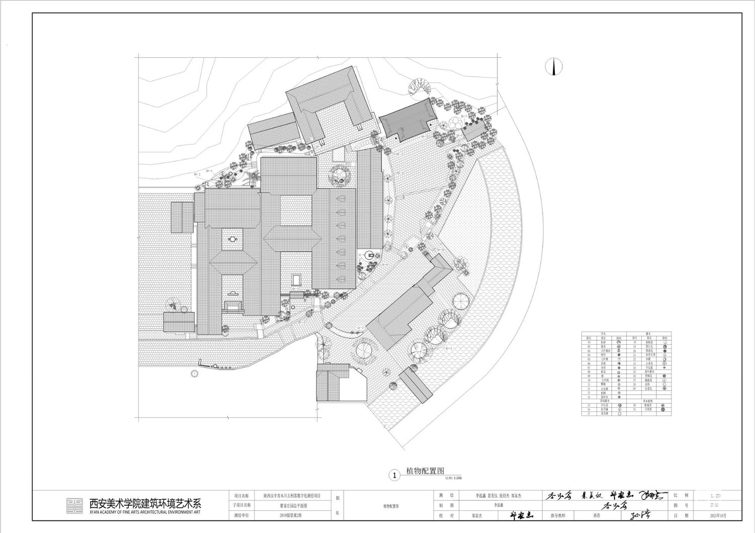
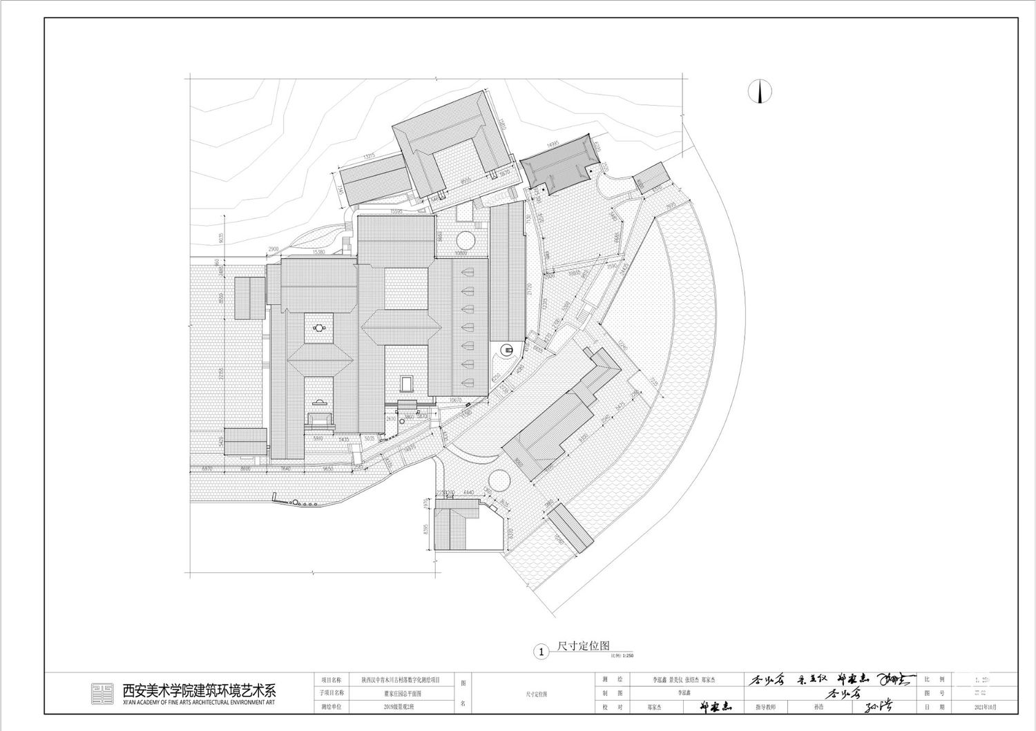
2021陕西汉中青木川古村落数字化测绘项目——瞿氏庄园总图组
- 发布时间: 2021-11-05
- 热度:12434
-
收藏
- No.102523
| 类别 |
年代 |
指导老师 |
| 环艺 |
2021 |
孙浩,吴文超 |
总图组通过实地测量与计算机辅助设计软件图纸的绘制,运用传统测量学知识、su软件,outocad计算机软件、GIS高程地形、GPS技术、VR虚拟仿真技术现场勘察测绘、植物调研分析配比用合适的材料按比例激光雕刻部分构建进行模型制作全景图渲染导出等,了解到传统建筑文化与生活的关系,提高了审美修养、理论修养、测绘能力及建筑空间认知,增强知识储备技能提高团队协作对接能力。