韩城城隍庙中轴线+西戏台小组
- 发布时间: 2021-11-02
- 热度:24631
-
收藏
- No.101520
韩城城隍庙,位于韩城市古城东北隅隍庙巷东段,坐北朝南,占地15499平方米。
从目前保存的韩城城隍庙实际布局来看,整条主轴线南北布局,庙的前后共分为九个院落。以最南端的琉璃雕花照壁为起点,向北穿过壁屏门和山门,依次是政教坊、威名门、广荐殿、德馨殿、灵佑殿、含光殿,配列有山门前城隍巷内的监察幽冥和保安黎庶两坊,广荐殿前的西戏楼,德馨殿庭院前的东西庑。
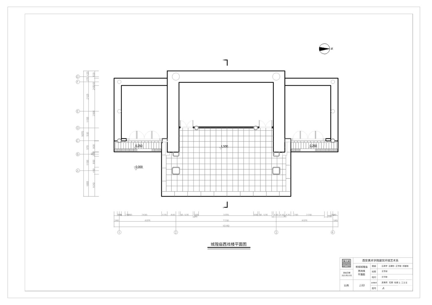
我们组主要测绘的西戏楼由主体和耳房组成,位于威明门北西侧。据《重{图成煌庙钟楼记》载,其戏楼名曰法歌楼,为北社陈大伦首倡而建,始建于明万历年间,据记载清康熙道光年间曾经维修过。整个戏楼由主体与两侧耳房组成。
我们小组在现场进行为期9天的现场测绘,通过手绘稿在现场记录下数据,在测绘过程中一边推进模型和cad,逐步将测绘内容数字化,精确化:并在现场通过水彩、描绘等艺术的表达形式记录下古建筑的瑰丽,以上是我们小组为其30天的古建测绘内容展陈。
韩城城隍庙,位于韩城市古城东北隅隍庙巷东段,坐北朝南,占地15499平方米。
从目前保存的韩城城隍庙实际布局来看,整条主轴线南北布局,庙的前后共分为九个院落。以最南端的琉璃雕花照壁为起点,向北穿过壁屏门和山门,依次是政教坊、威名门、广荐殿、德馨殿、灵佑殿、含光殿,配列有山门前城隍巷内的监察幽冥和保安黎庶两坊,广荐殿前的西戏楼,德馨殿庭院前的东西庑。
我们组主要测绘的西戏楼由主体和耳房组成,位于威明门北西侧。据《重{图成煌庙钟楼记》载,其戏楼名曰法歌楼,为北社陈大伦首倡而建,始建于明万历年间,据记载清康熙道光年间曾经维修过。整个戏楼由主体与两侧耳房组成。
我们小组在现场进行为期9天的现场测绘,通过手绘稿在现场记录下数据,在测绘过程中一边推进模型和cad,逐步将测绘内容数字化,精确化:并在现场通过水彩、描绘等艺术的表达形式记录下古建筑的瑰丽,以上是我们小组为其30天的古建测绘内容展陈。