韩城九郎庙后院测绘组

类别 年代 指导老师
环艺 2021 吴晓冬,石丽,王海麦,毛晨悦
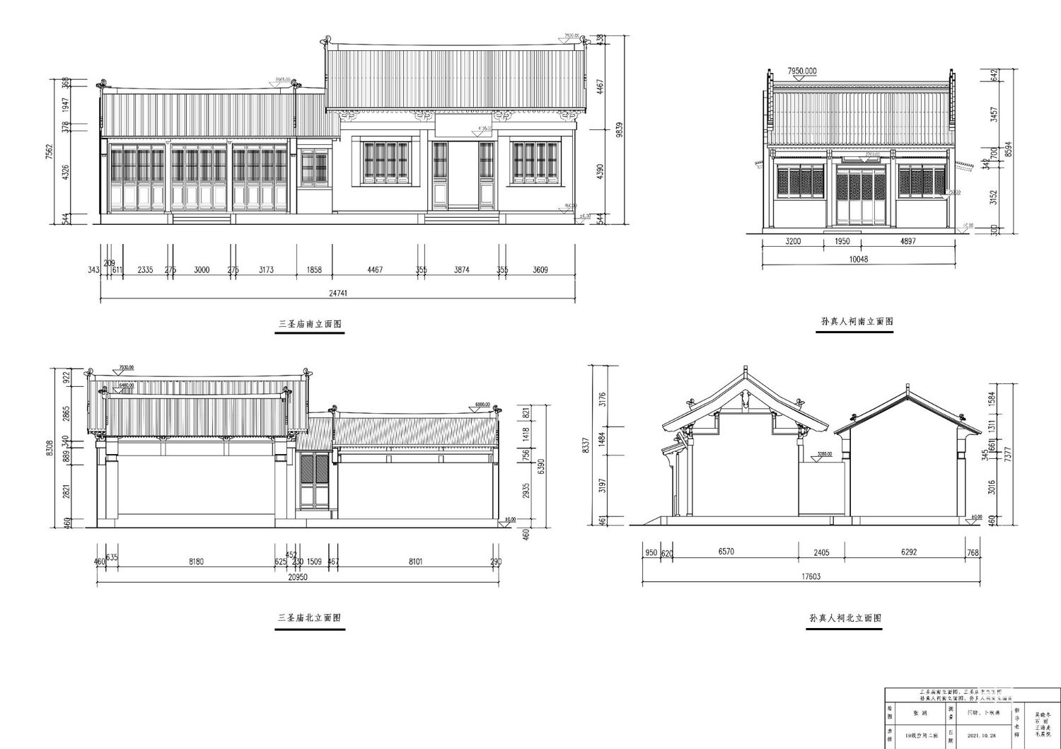
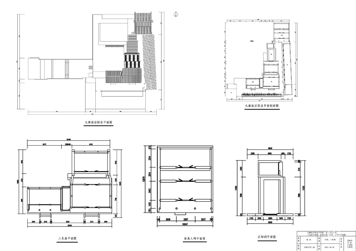
本次古建筑测绘的地点为黄河以西、关中盆地东北隅的韩城古城,测绘工作历时11天,以小组为测绘单位对九郎庙后院进行文化考察。测绘工作包括初测绘制草图、对所测数据进行复测、su模型校核等多个环节,对九郎庙后院的建筑体量、建筑细节、纹样,院落关系、展陈家具等多项内容进行记录。同时通过制作su模型体现院落整体的空间关系和建筑体量、细节构建和房屋之间搭连处的整体关系。制作动画解析榫卯结构在房屋结构和家具中的运用逻辑,加入“我的世界”游戏元素,让参观展览的人可以亲自在电脑上体验整体的浏览过程。并通过实体模型进行展示,重点放在表现院落之间的整体关系及家具的展示展览上,力图还原九郎庙后院的两大展厅给人以身临其境的感觉,进一步整理传统建筑结构、家具结构所蕴含的技术特色和文化价值。录制小组纪录片,与mc联动,使视频极具趣味性,实现游戏与现实的相互穿插,体现小组的自主风格和独特性。

古建测绘

评论内容

干程昊 2021-11-05

在此补充感谢研究生助教老师张雅雯

发布评论