韩城民居东街西巷+韩城南北主街街巷空间调研图册

类别 年代 指导老师
环艺 2021 吴晓冬 石丽 王海麦 毛晨悦
东街西巷组,是以韩城古城区的民居为主,围绕民居展开一系列工作。韩城南北主街组,是围绕主街金城大街商业街的街巷空间展开的一系列工作。

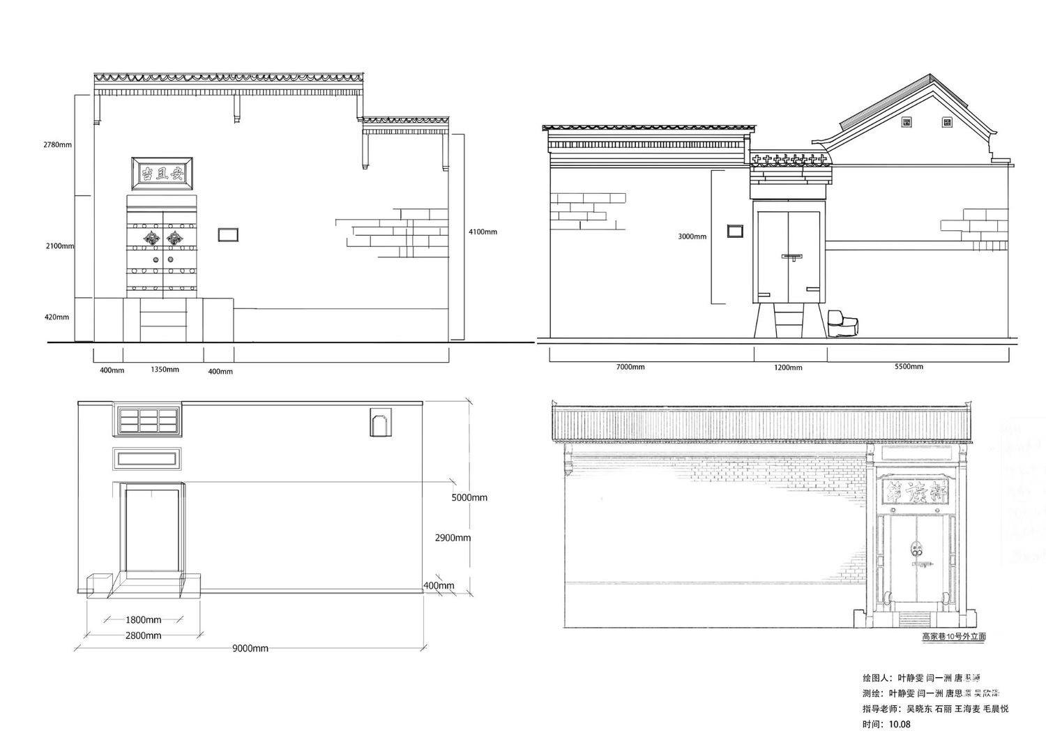
    韩城民居历史悠久,巷道宽窄变化,深深浅浅,弯弯绕绕。工作内容主要有测绘,了解文化,su建模,手工模型制作,分析图,文创,视频拍摄。

    在中国几千年悠久灿烂的历史文化中,留下了众多的历史性建筑。古城的保护及其利用作为对古城建筑及其文化传承的诉求越来越受到社会多方面的关注和认可。然而仍有许多在中国历史的篇章中留下深刻足印的古城面临着保护和利用的迫切需求,同时民居作为古城中不可忽视的组成部分,其作用、历史价值以及文化价值等都对古城研究及其保护和利用有着举足轻重的位置。通过本次课程,了解韩城的历史文化、探究民居历史、研究建筑特色、了解民居发展,通过对重要历史建筑的研究来深刻体会韩城民居的魅力和意义。


评论内容

闫一洲 2021-11-05

感谢助教老师 杨田依!

发布评论