北营庙大门及总平组
- 发布时间: 2021-11-02
- 热度:7122
-
收藏
- No.101255
| 类别 |
年代 |
指导老师 |
| 环艺 |
2021 |
毛晨悦,石丽,王海麦,吴晓冬 |
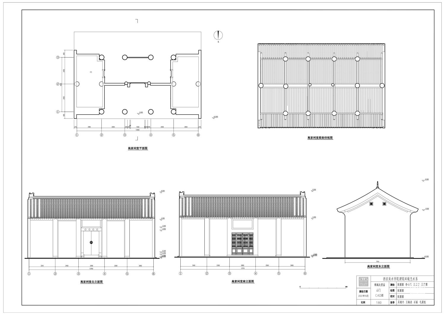
北营庙大门属于屋宇式大门,山门是三开间,中间的当心间设门,屋顶为硬山顶,结构类型是木构普通的梁架式结构。
因为沿庙院外墙修建街道,原来庙院的山门已被拆除,所以现在进出庙院时则要走东边后开的门。
屋宇式大门,是独立式的区域性大门中典型的代表,也是最为常见的一种大门形式,其建筑形态,呈现为一座单独的房屋建筑,既是"门"又是"屋"。在这一类大门之中,规模较大的宫门,呈多开间的门殿形式,而等级较低的宅门,则只是单开间的门屋。