韩城文庙测绘组

类别 年代 指导老师
环艺 2021 吴晓冬,石丽,毛晨悦,王海麦
韩城市文庙测绘、后续场地复原、相关文创制作等工作

地理位置:

韩城文庙位于韩城旧城金城学巷内。


历史沿革:

韩城现存文庙始建于明代洪武四年公元年,经明清两代多次修葺增建而成为现存规模。


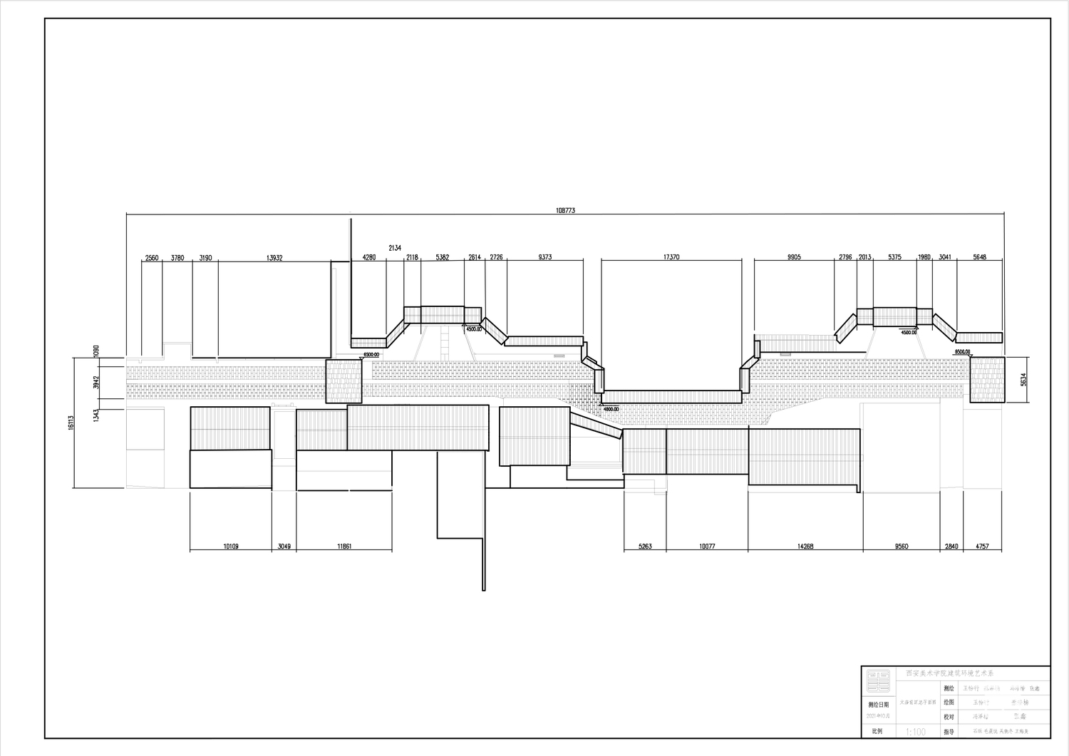
平面:

街巷的空间转折,文庙所处位置的街巷空间关系。韩城文庙的院落空间划分自古城学巷东西簧门外“德配天地”、“道冠古今”两座木牌坊开始 。由两座木牌坊引导的空间在权星门前得以收缩,突出门庭过渡空间的深邃。(为了与第一进院落的宽敞广阔对比,为主体大成殿提供了非凡的气势。)


构造:

两座木牌坊一方面标示了文庙建筑群的重要性质和至高等级另一方面作为进入文庙的引导,有效地渲染了文庙建筑群入口的壮观气氛 ,突出强化了文庙建筑群的庄严肃穆。文庙建筑群整体及门面空间意蕴也由点题为“德配天地”、“道冠古今”的两座木牌坊加强、展开 。


形式:

文庙东西簧门之前学巷内各建宽3.72米的木牌坊一座单檐悬山顶,布筒瓦,柱间施榫卯, 两柱为五抄九铺作穿斗式重拱 ,补间三攒 ,五抄九铺作,不出昂,重拱计心造 。 两立柱前后各用高1.23米,宽0.75米雕以鼓形的夹石和斜撑木固定。悬山两际作博风板并悬鱼惹草。牌坊双面匾额,东书“德配天地”,西书“道冠古今”。


工作内容:

• 前期   测绘,包括数据测量,测稿绘制,SU建立模型 工作照拍摄

• 后期   SU继续调整建模,贴图    生长以及漫步动画制作    牌坊CAD平立剖面、总平面图、街道立面    纹样绘制   分析图(区位、历史沿革、人群、)   展板  制作人文影像记录片  学巷米醋包装设计



评论内容

王怡行 2021-11-06

牛逼!!

发布评论