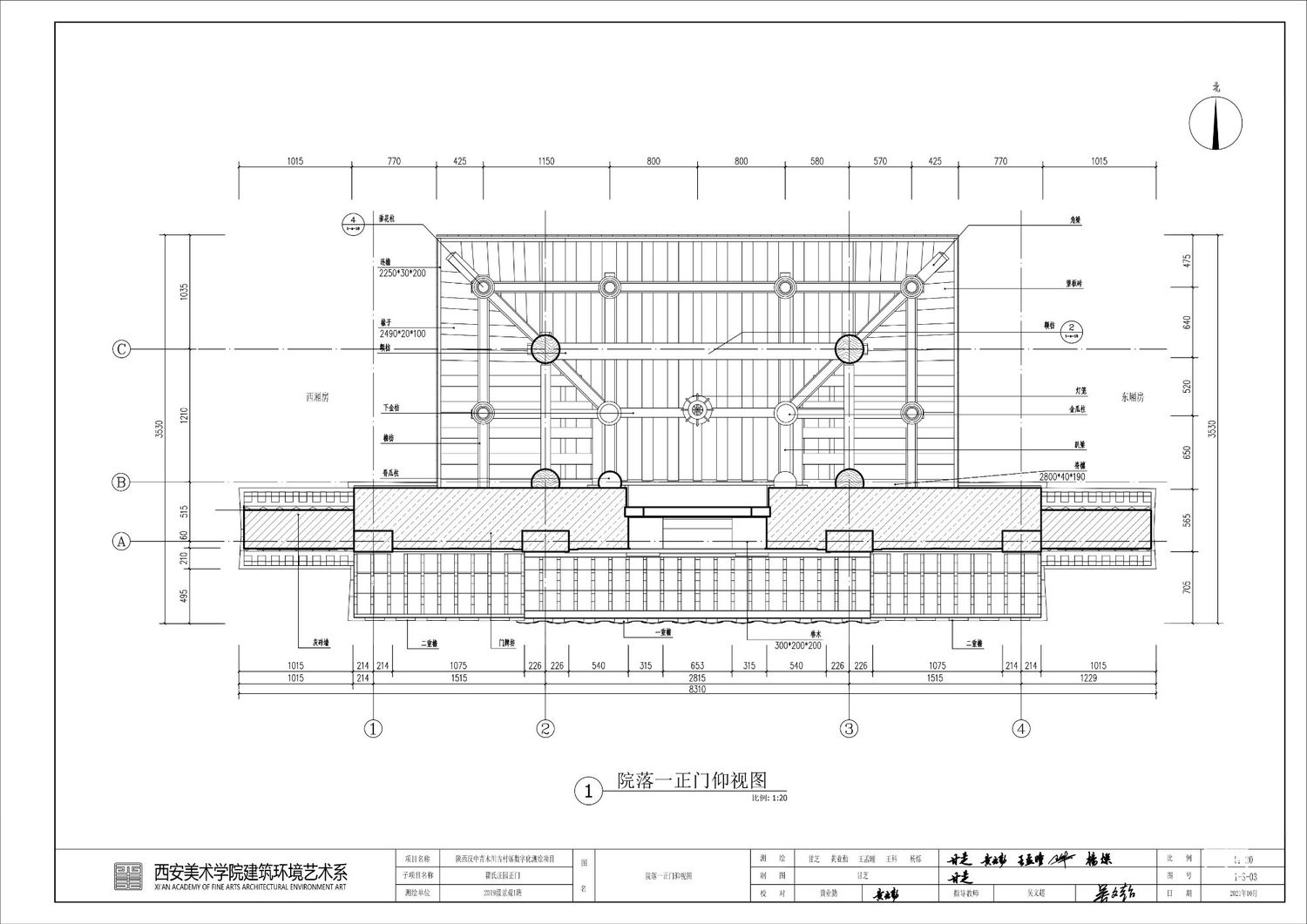
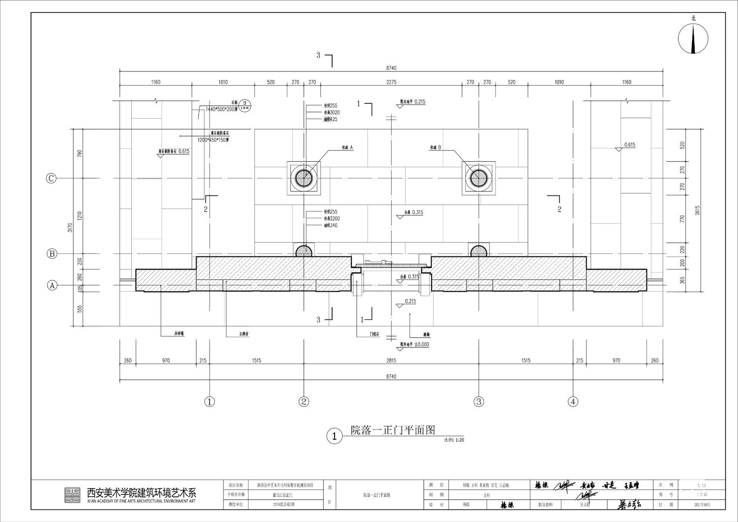
2021陕西汉中青木川古村落数字化测绘项目——瞿氏庄园正门

类别 年代 指导老师
环艺 2021 吴文超
该作品于2021年10月在陕西省汉中市宁强县青木川景区进行数字测绘工作。

瞿家大院,位于宁强县青木川镇北一公里的东坝村,周边山峦环绕,溪水长流,是一处顺应风水、规模恢宏的近代古建筑群落。其乃瞿氏家族的居住之地,院内建筑大多为土墙和木质结构。

建筑方面,瞿家大院所在东坝村和青木川同属于金溪河谷,但又被山峦隔断,形成单独盆地,与世隔绝。大院坐落在盆地边缘一隅,选址遵循天人合一的自然法则,谋求整体布局,注重人居与山水环境共存,前依平坝,背靠山峦,寨前溪水蜿蜒,寨后山林葱茏,石桥拱立,古宅巍然。大山、幽谷、平坝、深宅,彰显出瞿氏先祖极高的文化素养与审美情趣,以及在乱世“大隐于野”的生存智慧。

发布评论