2021陕西汉中青木川古镇数字化测绘项目----翟家庄园祠堂厢房及庭院

类别 年代 指导老师
环艺 2021 孙浩
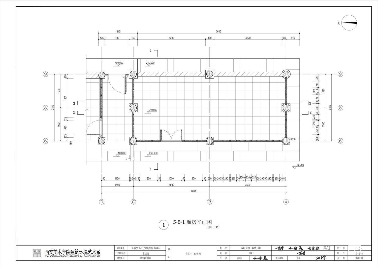
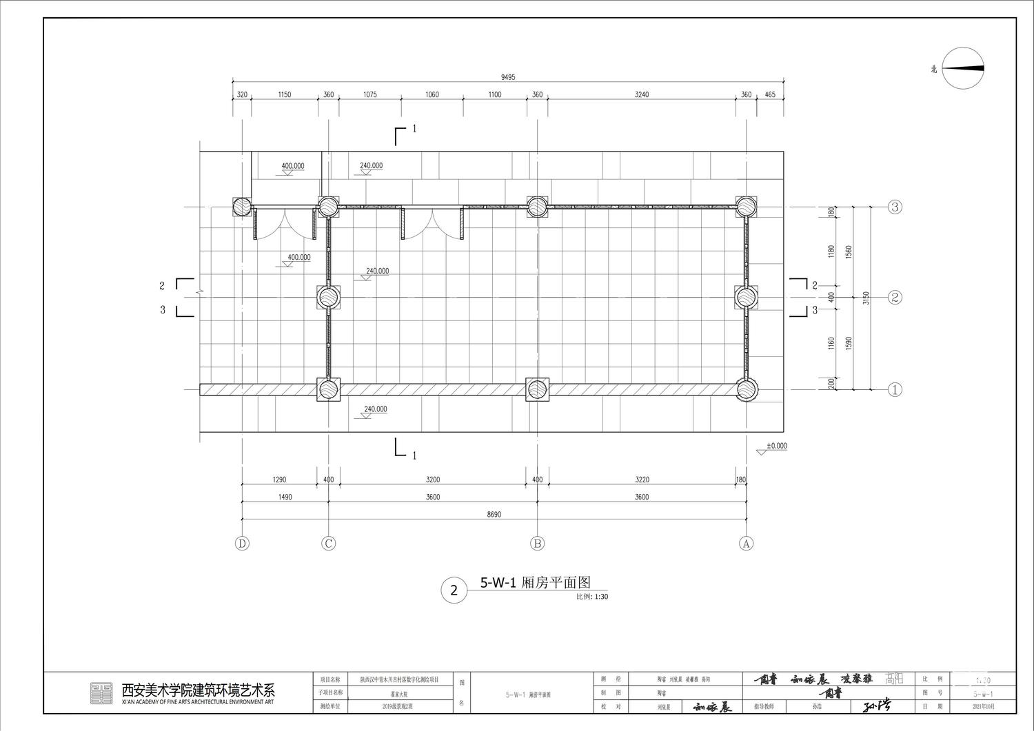
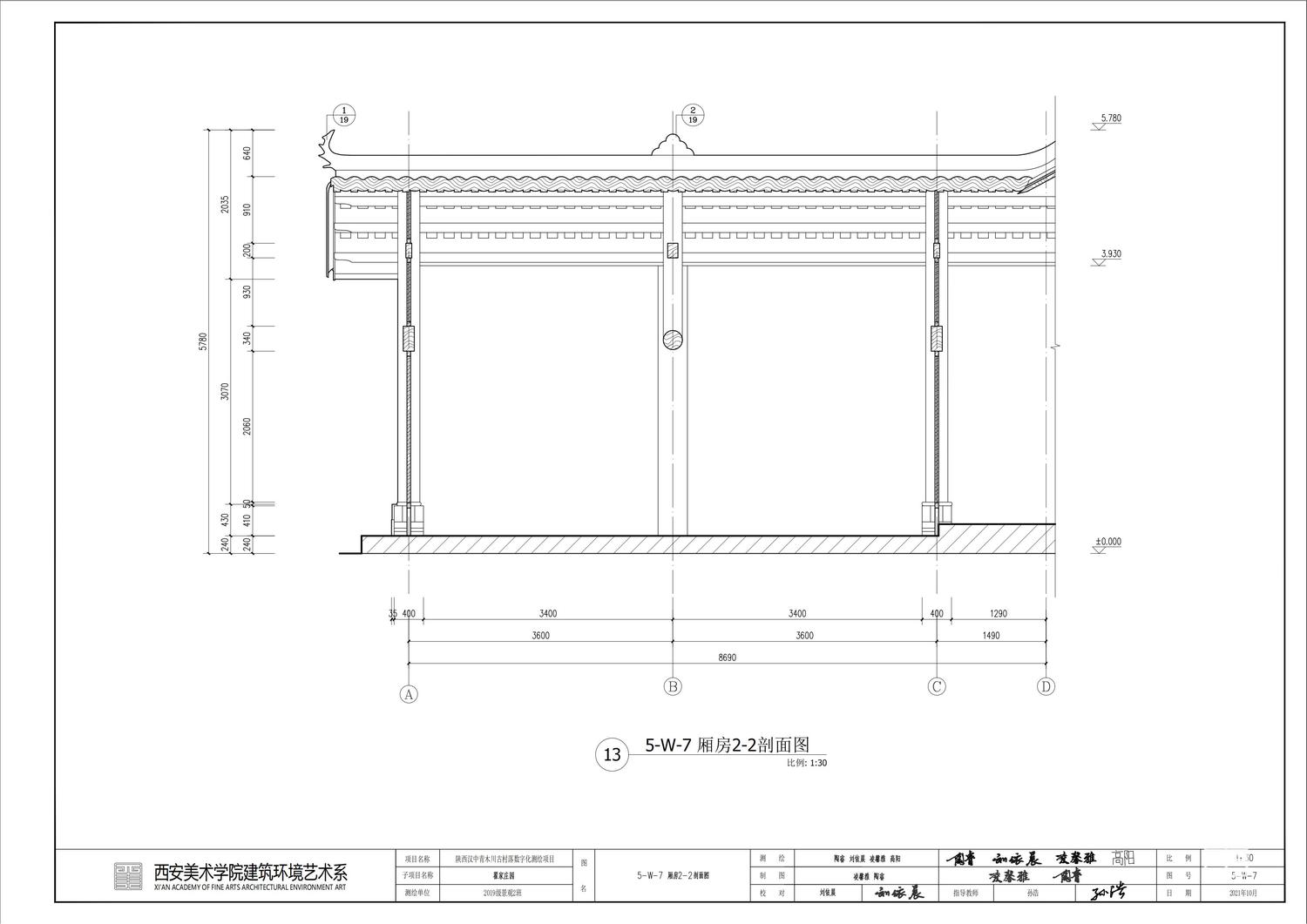
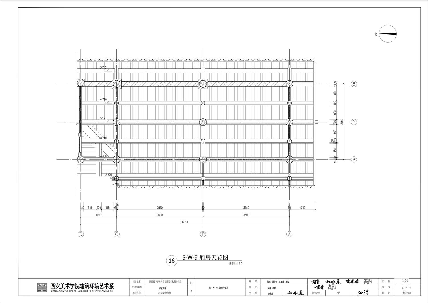
为期一个月的青木川古建测绘课程作业,此为我组成员共同整理的青木川翟家大院中的家祠厢房部分的数据(CAD)和SU模型效果图。

为期一个月的青木川古建测绘课程作业,此为我组成员共同整理的青木川翟家大院中的家祠厢房部分的数据(CAD)和SU模型效果图。内包括左右厢房各个立面、平面、顶面和剖面,还有门、窗和雀替等详图。通过实地测量与计算机辅助设计软件图纸的绘制,运用传统测量学知识、su软件,outocad计算机软件、进行手工模型制作等,学习了中国传统建筑的框架结构,装饰纹样,历史文化等,同时也了解到传统建筑文化与中华历史文化,在从古建筑上窥见百年前的风云变化,以及传统建筑与人们日常生活的关系。通过此次测绘,我们对所测绘的古建筑从整体到细部有了一个全面和系统的认识,提高了相关审美修养、理论修养、锻炼了测绘能力及提升了对建筑空间认知,增强知识储备技能,提高了团队沟通与团队协作能力。

发布评论