西安美术学院第十二届外出写生与艺术考察教学汇报展
微信直接登录
西安美术学院第十二届外出写生与艺术考察教学汇报展
首页
学生
作品
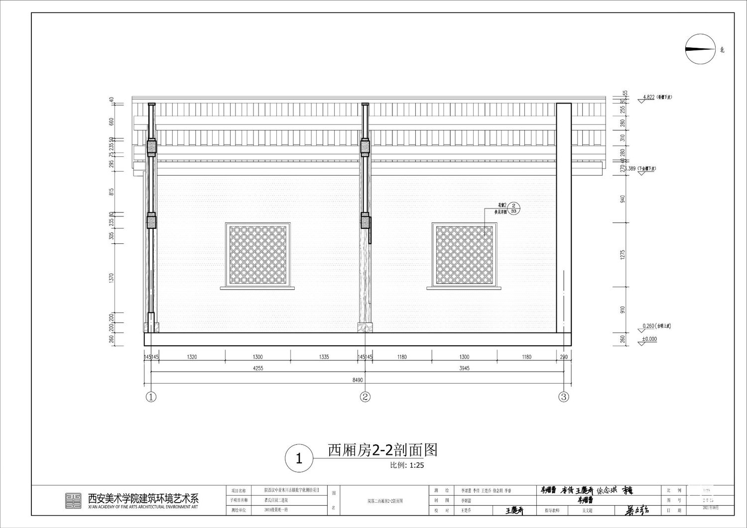
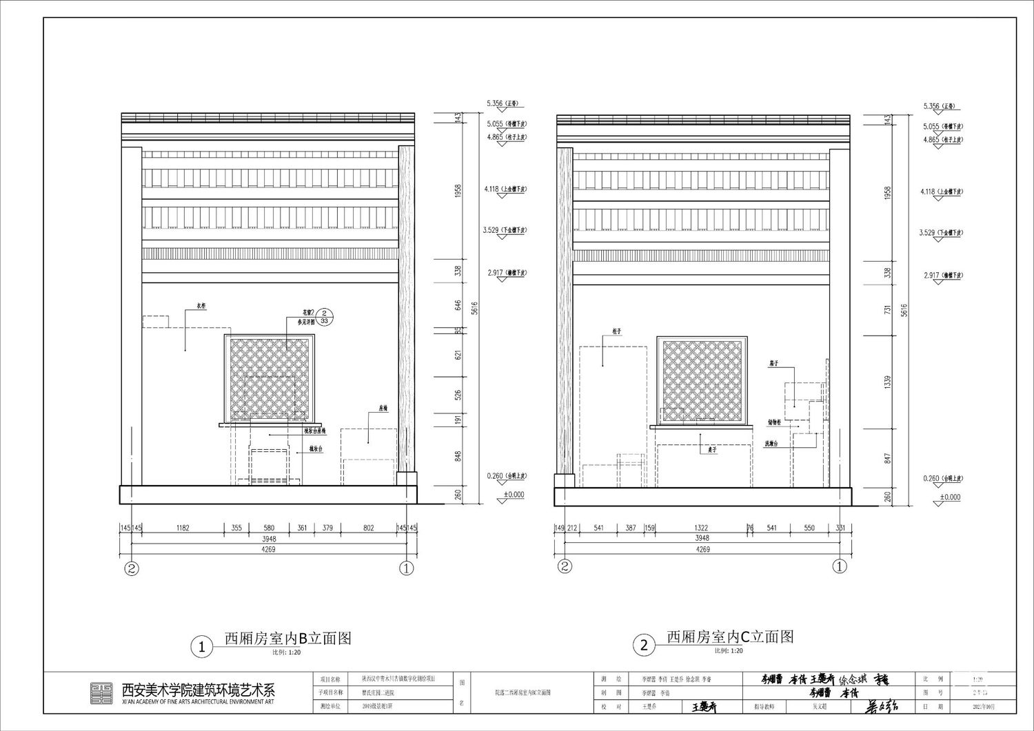
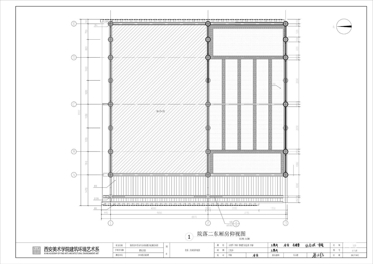
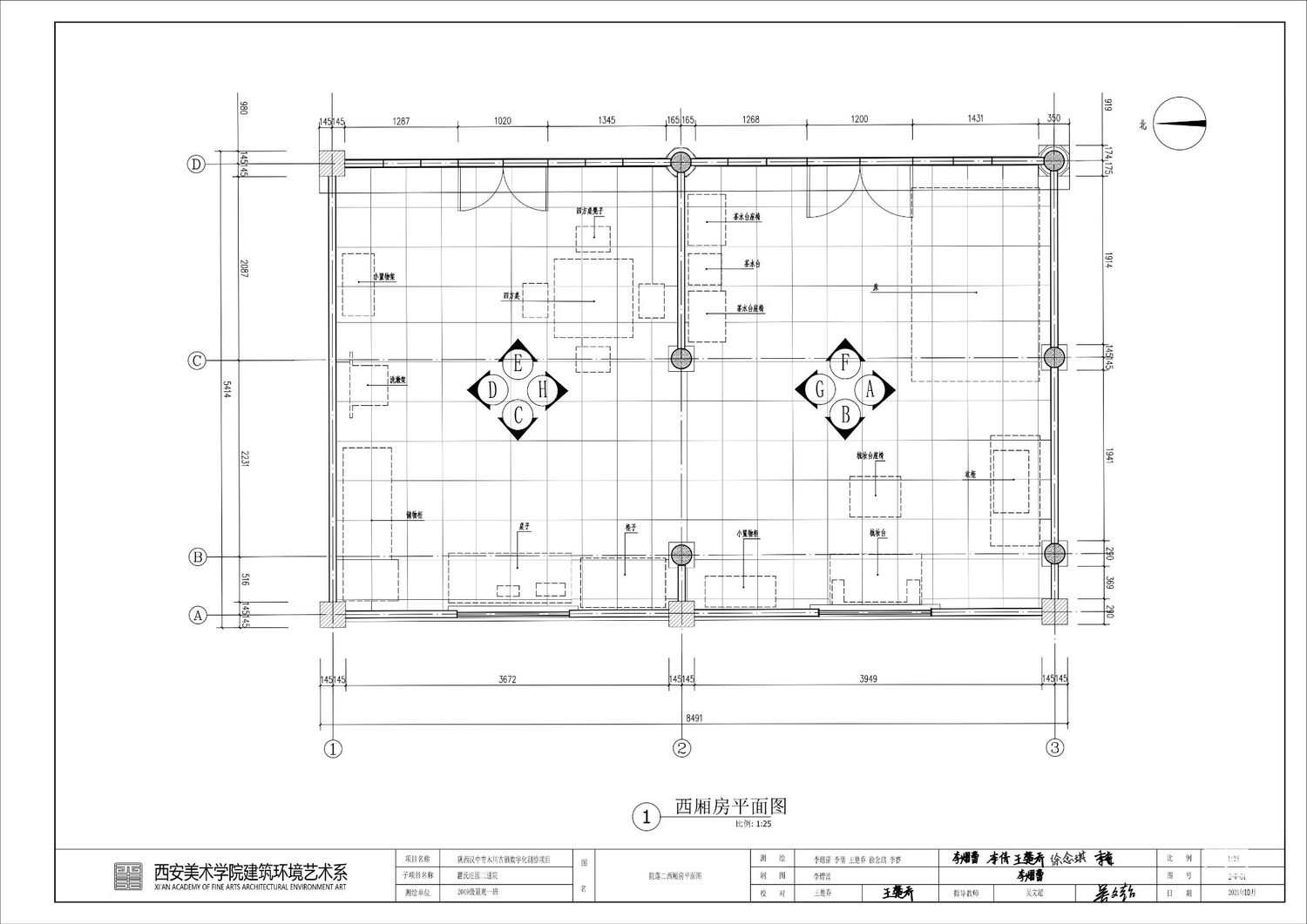
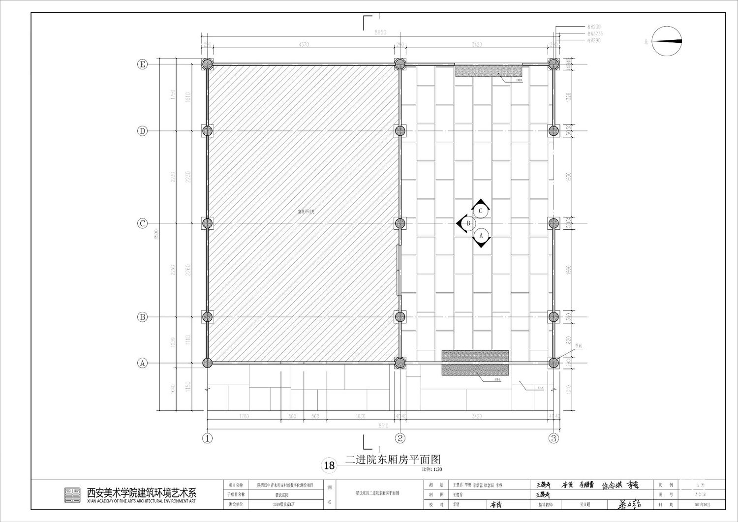
作品名称:2021年青木川数字化测绘瞿氏庄园院落二东西厢房
团队作品 TEAM WORK
学生信息
徐念琪
建筑环境艺术系
李倩
建筑环境艺术系
李熠蕾
建筑环境艺术系
李睿
建筑环境艺术系
王楚乔
建筑环境艺术系
作品信息
2021年青木川数字化测绘瞿氏庄园院落二东西厢房
发布时间: 2021-11-01
热度:15721
收藏
评论
No.100120
类别
年代
指导老师
环艺
2021
吴文超
五人小组对陕西省汉中市宁强县青木川古镇的瞿氏庄园院落二的东西厢房进行测绘和制作模型、绘制施工图。
点赞
2
发布评论
请登录后进行评论操作.....