2021陕西汉中青木川古村落数字化测绘项目——瞿氏庄园院落四正房

类别 年代 指导老师
环艺 2021 孙浩

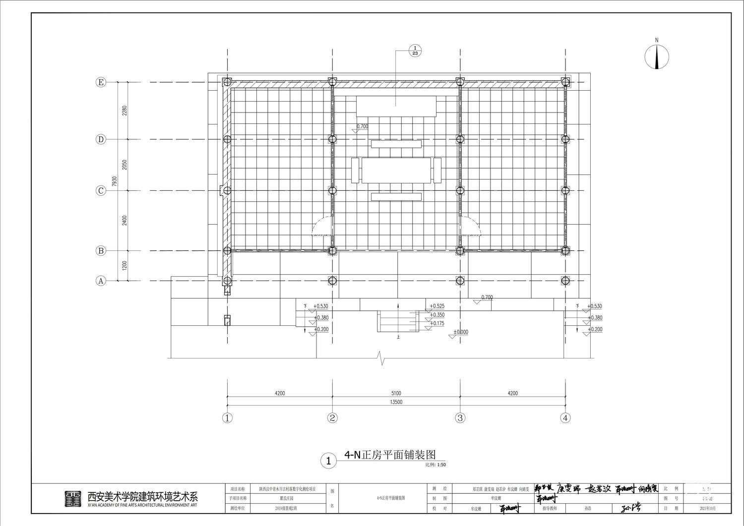
      瞿家大院,位于陕、甘、川交汇的青木川镇东坝村,是魏辅唐五姨太瞿瑶璋的故居。瞿家大院分东、西院及祠堂等四套院落,房屋63间,占地3300平方米。大院保存有瞿氏祠堂、戏楼、碑刻等。中西两院为典型的四合院两进院落。本次测绘,我组负责瞿家大院四进院正房的测绘工作。为穿斗式建筑,含三个开间,硬山顶,主要由木结构建成,有大量雕花,额枋装饰,颇为精致。

      完成了瞿氏庄园四进院北——正厅的古建筑测绘数字化项目。历时11天,通过实地测量与计算机辅助设计软件图纸的绘制,运用传统测量学知识,su软件,cad软件,ps软件,进行模型制作。人工测量出正房全部,手绘数据图,制作渲染效果图,cad施工图若干。将人工测量的数据转化为电子、数字化的数据,进行二维施工图、三维建模、乃至渲染效果图的制作。这次的测绘,也使本组组员从中感受到了古建筑的魅力,学到了古人对建筑的建造与认知,学到了古建筑复杂且精美的构造,学到了空间组织形式,以及制图的严谨性、规范性,培养了团队协作,艰苦奋斗的精神。

    

发布评论