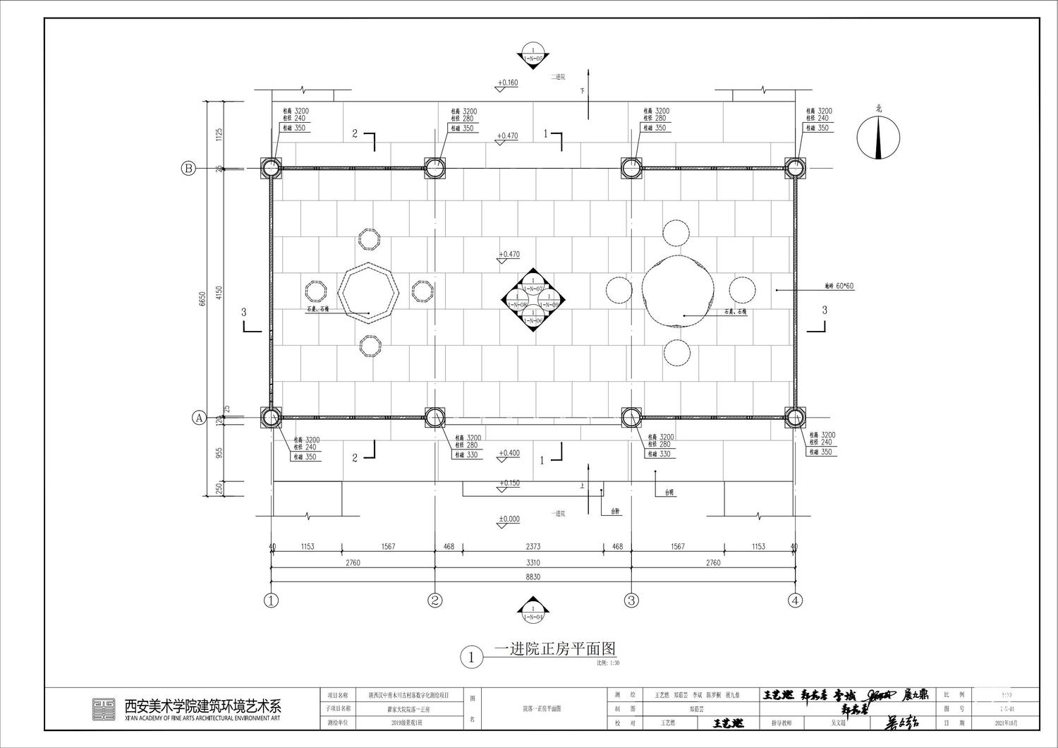
瞿式庄园院落一正房

类别 年代 指导老师
环艺 2021 吴文超
该作品在2021年十月于陕西省汉中市宁强县青木川古镇瞿式庄园进行测绘工作

经过此次测绘学习,我组成员对古代建筑有了初步了解,并以保护、发掘、整理和利用古代优秀建筑遗产为主要目标,为继承发扬古建筑传统文化,进而为探索与建设有中华文化特色的现代建筑努力。我们组所负责的是青木川古镇瞿式庄园第一院落的正房,它在布局上起到了承接第一院落和第二院落的作用,这里的纹样装饰十分丰富,尤以花板周边和雀替纹样较为突出。我们组的作品呈现形式以电脑为主,借助CAD、SU、enscape等软件将测绘成果以可视的方式带给大家,希望大家身临其境,感受古建筑艺术之美。

评论内容

郑茹芸 2021-11-05

太棒啦!!!

发布评论