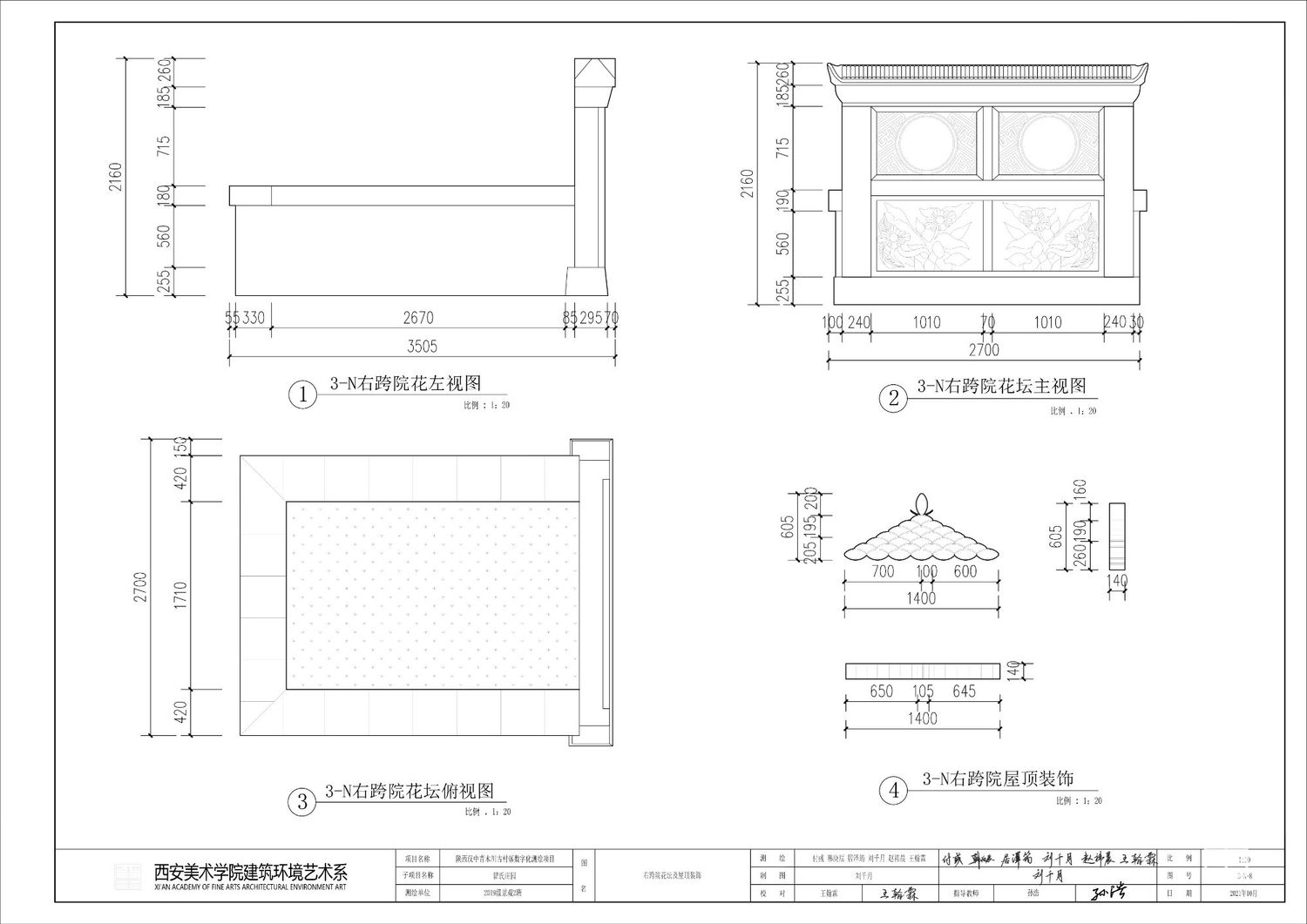
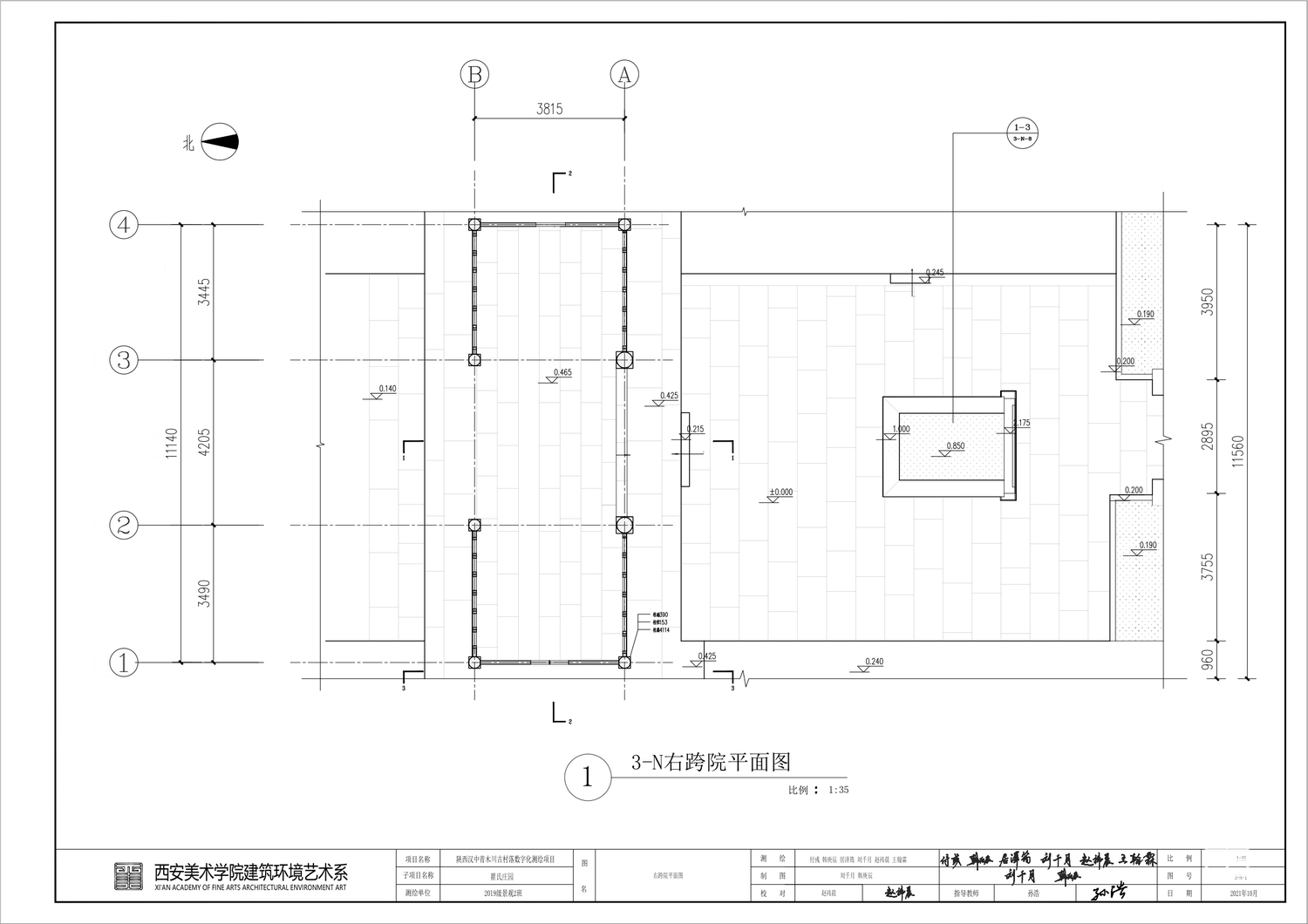
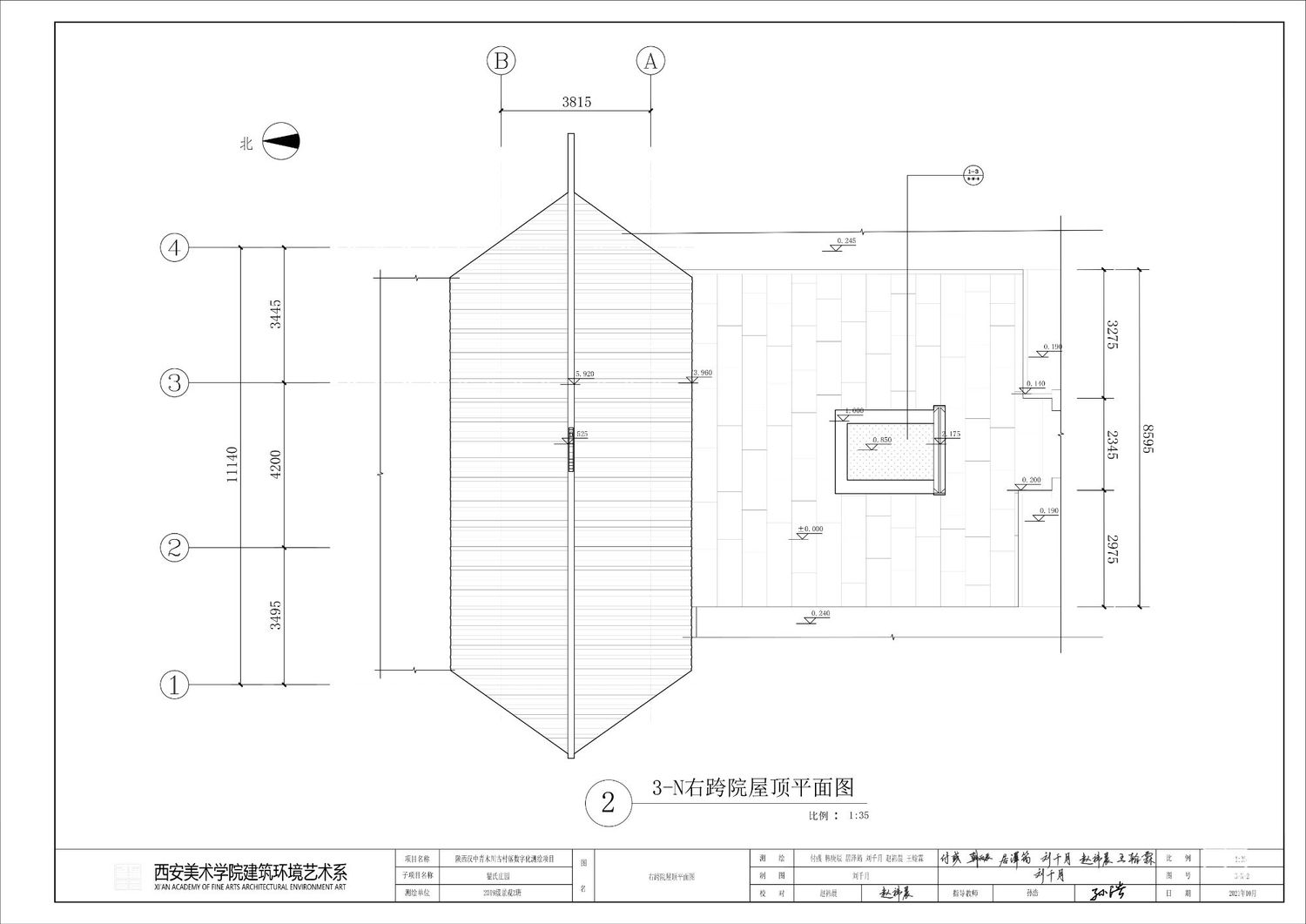
2021陕西汉中青木川古村落数字化测绘项目——瞿氏庄园右跨院穿堂

类别 年代 指导老师
环艺 2021 孙浩

瞿家大院位于宁强县青木川镇东北约一公里的东坝村(亦称瞿家沟村), 与青木川同属金溪河谷,但又被山峦隔断,形成单独盆地,这也是许多当地人都不知道瞿家大院的根本原因。彰显着瞿氏先祖在动乱年代“大隐于野”的生存智慧。据碑刻记载,瞿氏一脉源于山西省洪洞县,明成化十三年(1478)移甘肃武都,八世祖于清康熙四年(1665),移居青木川,已350余年。碑刻还记载:清道光年间瞿氏先祖耗银8000余两,修建瞿家大院,历经几代,逐渐扩大,形成东院、西院、中院、祠堂等5套院落,房屋53 间(现存),占地面积3290平米。使用面积2000余平米。附属不可移动文物有:家族墓地、瞿家沟栈道、瞿氏山寨遗址、生产消防渠等;另有可移动文物数十件。

该作品于2021年10月在陕西省汉中市宁强县青木川景区进行数字测绘工作,测绘工作历时10天,以测绘小组为单位对青木川瞿氏宅院进行文化考察,我们小组负责瞿氏大院右跨院穿堂部分测绘,通过实地测量和计算机辅助设计软件图纸的绘制,运用测量学知识、su软件,进行电脑模型,手工模型制作等,了解到传统建筑文化与生活的关系,提高了测绘能力及建筑空间认知,增强了知识储备技能提高了团队协作能力。


发布评论