2021陕西汉中青木川古村落数字化测绘项目——瞿氏庄园戏台

类别 年代 指导老师
环艺 2021 孙浩

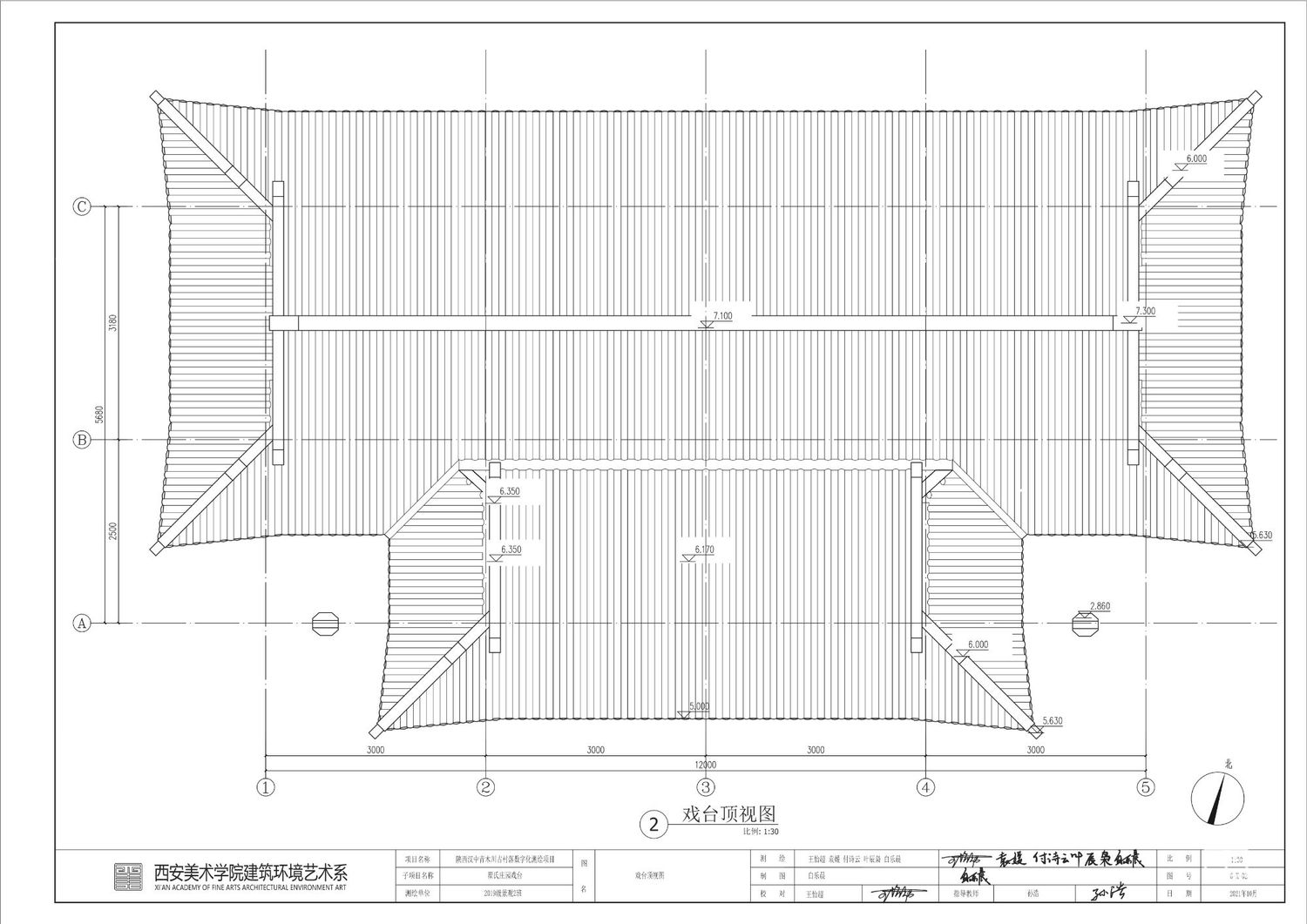
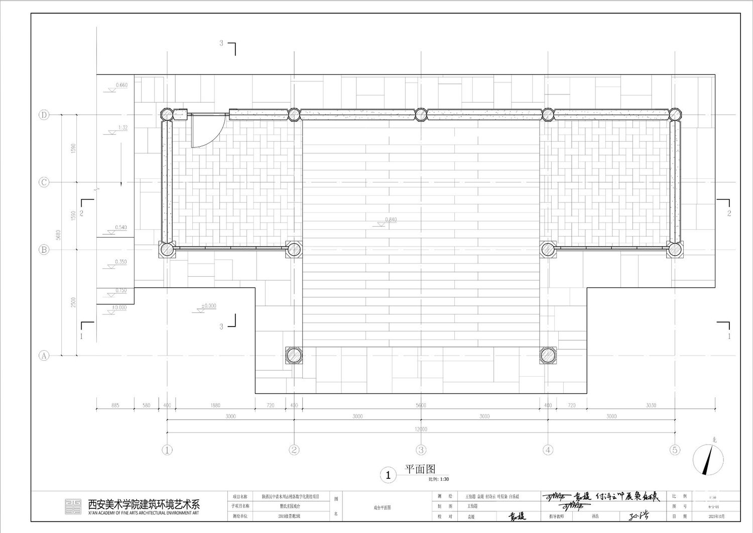
西安美术学院建筑环境艺术系景观班于十月上旬开始古建测绘,地点是位于陕西省汉中市宁强县青木川的瞿家大院,本组负责瞿家大院戏台。在前期了解和掌握电脑制图及建模软件的基础上,加以学习和理解传统文化建筑,把地域环境与建筑之间的关系结合,通过实地测量与计算机设计软件的辅助,小组成员共同合作,完成测量、记录、草稿、制图等一系列工作,同时运用传统测量学知识、outocad计算机软件、su软件进行图纸与模型制作等,最大程度的还原了瞿家大院戏台的真实场景。戏台由歇山顶,卷棚顶,斗拱等结构形式组成,主体为木质瓦屋,台基高约1米左右;有前、后台之分。后台四开间,后墙和山墙均用砖砌实,左右开间前面用带花窗的木板遮挡;前台伸出,台口为两开间,与后台相连,因前、左、右均无遮掩,可三面观看。台下场地有两个,高低、上下相连,约有三、四百平米,坐四五百人也宽松,完全能满足家族、村人看戏和集会。通过测绘,小组成员理解了传统建筑文化与生活的关系,提高了审美修养、理论修养、测绘能力及建筑空间认知,增强了知识储备技能并提高了团队协作能力。

发布评论